1
/
4
城南大套三安心出售
东方威尼斯D区 3室2厅
46.8 万 (4457.14元/m²)
电梯
本房源已支持VR看房,在线看房,省时省力
基本信息:
小区: 东方威尼斯D区
所属学区: 简城城南学校
楼层: 高层 /共32层
装修: 毛坯
梯户: 3梯5户
年代: 2024
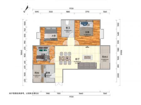
面积: 105m²
朝向: 西
附属面积: 不详
同小区房源: 4套在租 51套在售
详情:
用途: 住宅
产权性质: 私产
建筑结构: 钢混结构
房屋类型: 高层
标签: 电梯
配套设施:
无
房源特色:
该房位于城南品质小区,环境优美,户型宽大方正,产权齐全,可以按揭
温馨房地产专注简阳房产30年——用心打造放心中介品牌!
用途: 住宅
产权性质: 私产
建筑结构: 钢混结构
房屋类型: 高层
标签: 电梯
配套设施:
无
房源特色:
该房位于城南品质小区,环境优美,户型宽大方正,产权齐全,可以按揭
温馨房地产专注简阳房产30年——用心打造放心中介品牌!
位置:
房源动态
7日带看(次)
0
累计带看(次)
0
带看记录
| 带看时间 | 带看经纪人 | 咨询电话 |