1
/
4
水东电梯带车位清水套四
诚卓高端 4室2厅
101.8 万 (7271.43元/m²)
满两年
电梯
本房源已支持VR看房,在线看房,省时省力
基本信息:
小区: 诚卓高端
所属学区: 射洪坝第一初级中学
楼层: 高层 /共30层
装修: 毛坯
梯户: 2梯5户
年代: 2020
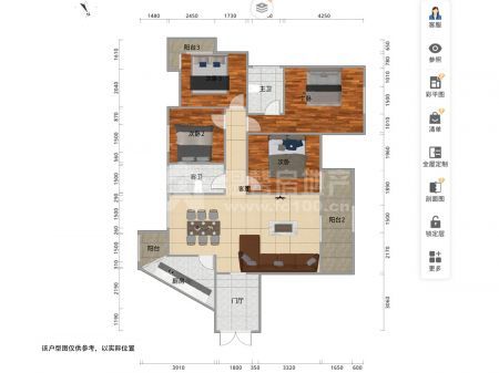
面积: 140m²
朝向: 北
附属面积: 不详
同小区房源: 2套在租 30套在售
详情:
用途: 住宅
产权性质: 私产
建筑结构: 钢混结构
房屋类型: 高层
标签: 电梯
配套设施:
无
房源特色:
该房位于河东新区水东区域,电梯套四清水房带车位,车位就在楼下,产权满两年税低
温馨房地产专注简阳房产30年——用心打造放心中介品牌!
用途: 住宅
产权性质: 私产
建筑结构: 钢混结构
房屋类型: 高层
标签: 电梯
配套设施:
无
房源特色:
该房位于河东新区水东区域,电梯套四清水房带车位,车位就在楼下,产权满两年税低
温馨房地产专注简阳房产30年——用心打造放心中介品牌!
位置:
房源动态
7日带看(次)
0
累计带看(次)
0
带看记录
| 带看时间 | 带看经纪人 | 咨询电话 |