1
/
4
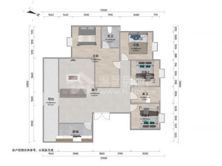
兴唐府,143平,小洋房,总高11楼,房东诚心出售
兴唐府 4室2厅
128.8 万 (9006.99元/m²)
电梯
本房源已支持VR看房,在线看房,省时省力
基本信息:
小区: 兴唐府
所属学区: 射洪坝第一初级中学
楼层: 中层 /共10层
装修: 毛坯
梯户: 1梯2户
年代: 2022
面积: 143m²
朝向: 南
附属面积: 不详
同小区房源: 0套在租 63套在售
详情:
用途: 住宅
产权性质: 私产
建筑结构: 钢混结构
房屋类型: 洋房
标签: 电梯
配套设施:
无
房源特色:
小洋房143平大平层飞机户型,看中庭,南北通透。
温馨房地产专注简阳房产30年——用心打造放心中介品牌!
用途: 住宅
产权性质: 私产
建筑结构: 钢混结构
房屋类型: 洋房
标签: 电梯
配套设施:
无
房源特色:
小洋房143平大平层飞机户型,看中庭,南北通透。
温馨房地产专注简阳房产30年——用心打造放心中介品牌!
位置:
房源动态
7日带看(次)
0
累计带看(次)
0
带看记录
| 带看时间 | 带看经纪人 | 咨询电话 |