1
/
4
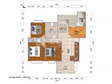
河东新区电梯小高层套四双卫
金地花园 4室2厅
103.8 万 (7208.33元/m²)
满五年
电梯
随时看房
本房源已支持VR看房,在线看房,省时省力
基本信息:
小区: 金地花园
所属学区: 射洪坝第一小学
楼层: 高层 /共16层
装修: 毛坯
梯户: 1梯2户
年代: 不详
面积: 144m²
朝向: 东
附属面积: 不详
同小区房源: 1套在租 8套在售
详情:
用途: 住宅
产权性质: 私产
建筑结构: 不详
房屋类型: 小高层
标签: 电梯
配套设施:
无
房源特色:
简中,一幼,实验小学,百伦百货,永辉超市,,上学,购物,出行方便。此房电梯小高层1梯二户型,套四双卫户型,户型方正,设计合理,无浪费面积,产权满五年,过户税费低。
温馨房地产专注简阳房产30年——用心打造放心中介品牌!
用途: 住宅
产权性质: 私产
建筑结构: 不详
房屋类型: 小高层
标签: 电梯
配套设施:
无
房源特色:
简中,一幼,实验小学,百伦百货,永辉超市,,上学,购物,出行方便。此房电梯小高层1梯二户型,套四双卫户型,户型方正,设计合理,无浪费面积,产权满五年,过户税费低。
温馨房地产专注简阳房产30年——用心打造放心中介品牌!