1
/
4
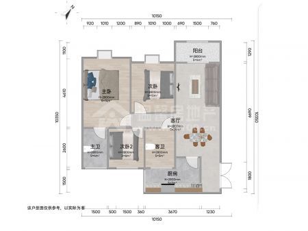
都会森林二期 3室2厅
49.8 万 (5134.02元/m²)
电梯
随时看房
本房源已支持VR看房,在线看房,省时省力
基本信息:
小区: 都会森林二期
所属学区: 石桥小学
楼层: 中层 /共18层
装修: 毛坯
梯户: 2梯4户
年代: 100
面积: 97m²
朝向:
附属面积: 不详
同小区房源: 1套在租 7套在售
详情:
用途: 住宅
产权性质: 不详
建筑结构: 不详
房屋类型: 小高层
标签: 电梯
配套设施:
无
房源特色:
高端品质楼盘 安心卖 欢迎推荐
温馨房地产专注简阳房产30年——用心打造放心中介品牌!
用途: 住宅
产权性质: 不详
建筑结构: 不详
房屋类型: 小高层
标签: 电梯
配套设施:
无
房源特色:
高端品质楼盘 安心卖 欢迎推荐
温馨房地产专注简阳房产30年——用心打造放心中介品牌!
位置:
房源动态
7日带看(次)
0
累计带看(次)
2
带看记录
| 带看时间 | 带看经纪人 | 咨询电话 |
| 2025-10-21 |
|
15908417410 |
| 2025-10-18 |
|
15108153910 |