1
/
4
城北新城套三双卫
天慧城一二期 3室1厅
69.8 万 (6363.97元/m²)
满两年
电梯
本房源已支持VR看房,在线看房,省时省力
基本信息:
小区: 天慧城一二期
所属学区: 石桥小学
楼层: 高层 /共28层
装修: 中装
梯户: 2梯5户
年代: 2021
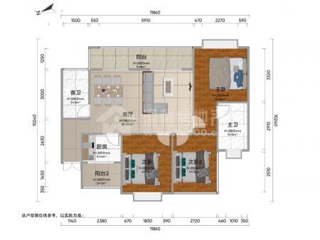
面积: 109.68m²
朝向: 东
附属面积: 不详
同小区房源: 14套在租 107套在售
详情:
用途: 住宅
产权性质: 私产
建筑结构: 钢混结构
房屋类型: 高层
标签: 电梯
配套设施:
床;衣柜;餐桌;沙发;书桌;电视;空调;冰箱;洗衣机;油烟机;灶具;热水器;
房源特色:
城北新城套三双卫....小区环境好安静...适合养老..
温馨房地产专注简阳房产30年——用心打造放心中介品牌!
用途: 住宅
产权性质: 私产
建筑结构: 钢混结构
房屋类型: 高层
标签: 电梯
配套设施:
床;衣柜;餐桌;沙发;书桌;电视;空调;冰箱;洗衣机;油烟机;灶具;热水器;
房源特色:
城北新城套三双卫....小区环境好安静...适合养老..
温馨房地产专注简阳房产30年——用心打造放心中介品牌!
位置:
房源动态
7日带看(次)
0
累计带看(次)
0
带看记录
| 带看时间 | 带看经纪人 | 咨询电话 |