海上花园一期套三诚售

  • 图片(9)
  • 户型图(1)
分享房源
55.8
4960 元/m²
3室2厅
高层 /共28层
中装
112.5m²
2012年建/ 住宅
所在区域 简阳城区   城北片区
所属学区 城北小学
房源编号 M-20572
看房时间 随时看房
18398098783
好房推荐
满两年
电梯
随时看房
寄售

基本信息

基本属性
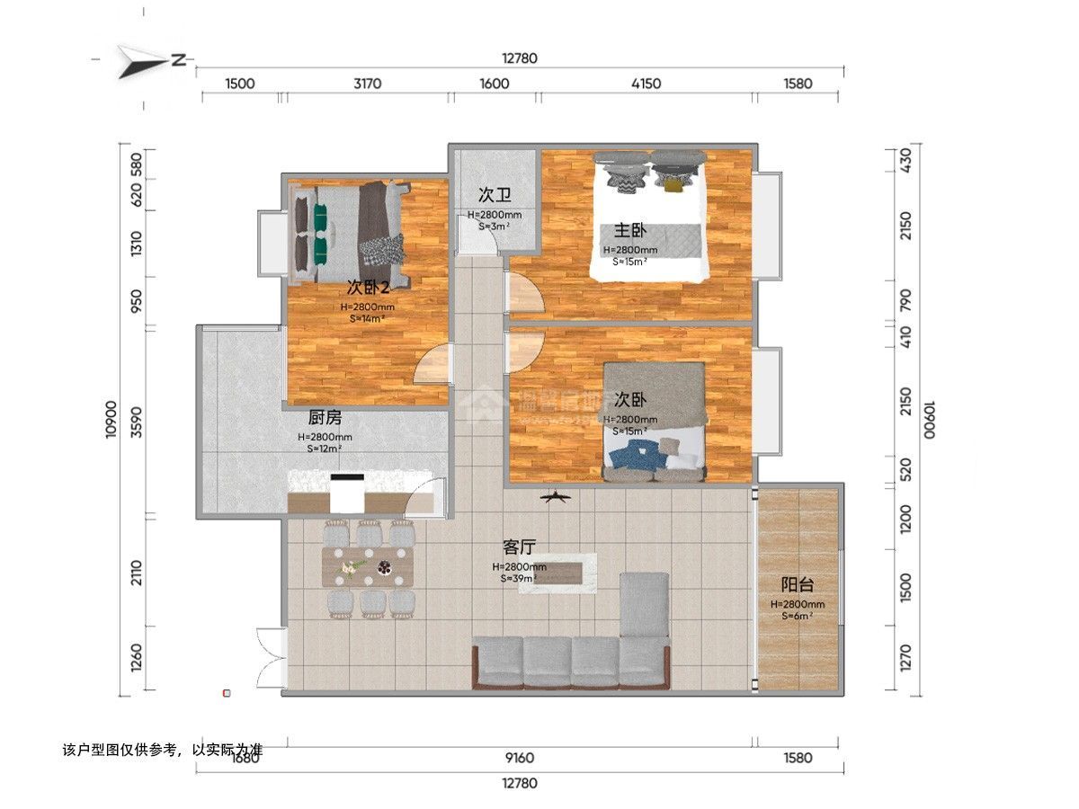
  • 房屋户型 3室2厅 1厨 1卫 1阳台
  • 所在楼层 高层 /共28层
  • 建筑面积 112.5m²
  • 房屋税收 个税
  • 使用面积 0m²
  • 建筑类型 高层
  • 附属面积 0m²
  • 房屋布局 平层
  • 房屋朝向
  • 建筑结构 钢混结构
  • 装修情况 中装
  • 梯户比例 2梯4户
  • 所属学区 城北小学
  • 出让年限 70年
  • 交易权属 私产
  • 房屋用途 住宅
  • 房屋标签 电梯
  • 房屋特色 该房位于城北海上花园,套三,视野好。产权清晰,满五年,可以办理按揭。周边配套设施齐全,人民公园、滨江公园、星科医院、城北菜市、城北九义校、旭海时代广场等,且出小区既是公交车站,交通生活非常便利。
    温馨房地产专注简阳房产30年——用心打造放心中介品牌!
  • 房屋配套 床;衣柜;餐桌;沙发;书桌;橱柜;电视;空调;冰箱;洗衣机;油烟机;灶具;热水器;有线;宽带;WIFI;

房源照片

户型图
看房记录
带看时间
带看经纪人
咨询电话
2023-06-02
15908417410
2023-05-27
15108153910
近7天带看次数
0
- 总带看 2 次 -

海上花园一二期地址

为你推荐新房 查看更多