临江

  • 图片(8)
  • 户型图(1)
分享房源
45
5113.64 元/m²
2室2厅
中层 /共32层
毛坯
88m²
2024年建/ 住宅
所在区域 简阳城区   城南片区
所属学区 简城城南学校
房源编号 M-42136
看房时间 咨询经纪人
18215582013
电梯
临江

基本信息

基本属性
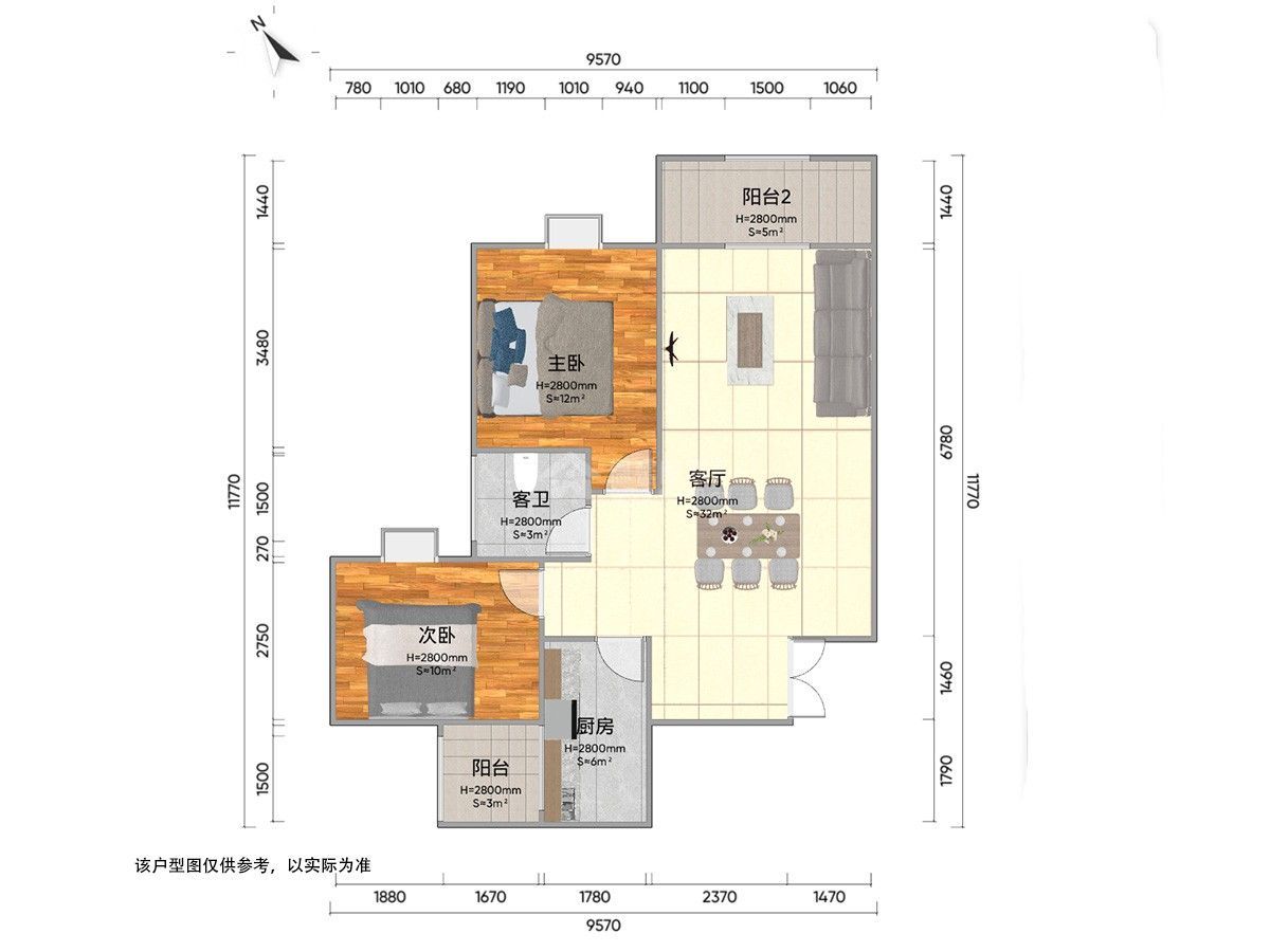
  • 房屋户型 2室2厅 1厨 1卫 1阳台
  • 所在楼层 中层 /共32层
  • 建筑面积 88m²
  • 房屋税收 无税
  • 使用面积 0m²
  • 建筑类型 高层
  • 附属面积 0m²
  • 房屋布局 平层
  • 房屋朝向
  • 建筑结构 钢混结构
  • 装修情况 毛坯
  • 梯户比例 2梯5户
  • 所属学区 简城城南学校
  • 出让年限 70年
  • 交易权属 私产
  • 房屋用途 住宅
  • 房屋标签 电梯;临江
  • 房屋特色 暂无数据
  • 房屋配套

房源照片

户型图
看房记录
带看时间
带看经纪人
咨询电话
近7天带看次数
0
- 总带看 0 次 -

东方威尼斯D区地址

为你推荐新房 查看更多