1
/
4
带入户花园 带结构板
喜悦美湖 3室2厅
83.8 万 (7993.89元/m²)
好房推荐
满两年
电梯
随时看房
本房源已支持VR看房,在线看房,省时省力
基本信息:
小区: 喜悦美湖
所属学区: 射洪坝第二幼儿园
楼层: 高层 /共30层
装修: 中装
梯户: 3梯8户
年代: 不详
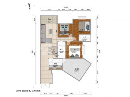
面积: 104.83m²
朝向: 南
附属面积: 不详
同小区房源: 5套在租 51套在售
详情:
用途: 住宅
产权性质: 私产
建筑结构: 钢混结构
房屋类型: 高层
标签: 电梯
配套设施:
床;衣柜;餐桌;沙发;书桌;橱柜;电视;空调;冰箱;洗衣机;油烟机;灶具;热水器;有线;宽带;WIFI;
房源特色:
该房位于河东新区喜悦美湖,品质楼盘,地理位置优越,出小区既是滨江路。电梯套三,全装修带家具家电,产权满两年,可按揭。
温馨房地产专注简阳房产30年——用心打造放心中介品牌!
用途: 住宅
产权性质: 私产
建筑结构: 钢混结构
房屋类型: 高层
标签: 电梯
配套设施:
床;衣柜;餐桌;沙发;书桌;橱柜;电视;空调;冰箱;洗衣机;油烟机;灶具;热水器;有线;宽带;WIFI;
房源特色:
该房位于河东新区喜悦美湖,品质楼盘,地理位置优越,出小区既是滨江路。电梯套三,全装修带家具家电,产权满两年,可按揭。
温馨房地产专注简阳房产30年——用心打造放心中介品牌!
位置:
房源动态
7日带看(次)
0
累计带看(次)
0
带看记录
| 带看时间 | 带看经纪人 | 咨询电话 |