1
/
4
河东精装修套三带全套出售
江东半岛 3室2厅
69.8 万 (7001元/m²)
满两年
电梯
临江
本房源已支持VR看房,在线看房,省时省力
基本信息:
小区: 江东半岛
所属学区: 射洪坝筒车小学
楼层: 高层 /共32层
装修: 精装
梯户: 2梯5户
年代: 不详
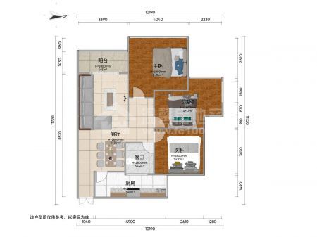
面积: 99.7m²
朝向: 东南
附属面积: 不详
同小区房源: 3套在租 28套在售
详情:
用途: 住宅
产权性质: 私产
建筑结构: 钢混结构
房屋类型: 高层
标签: 电梯;临江
配套设施:
床;衣柜;餐桌;沙发;书桌;橱柜;电视;空调;冰箱;洗衣机;油烟机;灶具;热水器;有线;宽带;WIFI;
房源特色:
该房位于河东新区沱四桥板块的江东半岛,套三单卫,户型方正,赠送面积大,采光好
温馨房地产专注简阳房产30年——用心打造放心中介品牌!
用途: 住宅
产权性质: 私产
建筑结构: 钢混结构
房屋类型: 高层
标签: 电梯;临江
配套设施:
床;衣柜;餐桌;沙发;书桌;橱柜;电视;空调;冰箱;洗衣机;油烟机;灶具;热水器;有线;宽带;WIFI;
房源特色:
该房位于河东新区沱四桥板块的江东半岛,套三单卫,户型方正,赠送面积大,采光好
温馨房地产专注简阳房产30年——用心打造放心中介品牌!
位置:
房源动态
7日带看(次)
0
累计带看(次)
0
带看记录
| 带看时间 | 带看经纪人 | 咨询电话 |