1
/
4
锦官天宸楼王洋房带车位
锦官天宸 4室2厅
138 万 (9636.87元/m²)
随时看房
本房源已支持VR看房,在线看房,省时省力
基本信息:
小区: 锦官天宸
所属学区: 射洪坝第一初级中学
楼层: 高层 /共10层
装修: 毛坯
梯户: 2户
年代: 2023
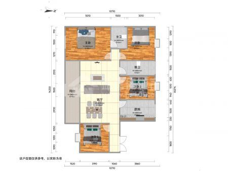
面积: 143.2m²
朝向: 东
附属面积: 不详
同小区房源: 2套在租 65套在售
详情:
用途: 住宅
产权性质: 私产
建筑结构: 钢混结构
房屋类型: 洋房
标签: 暂无标签
配套设施:
床;衣柜;餐桌;沙发;书桌;橱柜;电视;空调;冰箱;洗衣机;油烟机;灶具;热水器;有线;宽带;WIFI;
房源特色:
该房位于河东新区品质小区锦官天宸,并且是楼王位置好楼层,一梯两户洋房,全临小区中庭,房东目前安心出售,价格可以谈,包含负一楼一个独立产权大车位。
温馨房地产专注简阳房产30年——用心打造放心中介品牌!
用途: 住宅
产权性质: 私产
建筑结构: 钢混结构
房屋类型: 洋房
标签: 暂无标签
配套设施:
床;衣柜;餐桌;沙发;书桌;橱柜;电视;空调;冰箱;洗衣机;油烟机;灶具;热水器;有线;宽带;WIFI;
房源特色:
该房位于河东新区品质小区锦官天宸,并且是楼王位置好楼层,一梯两户洋房,全临小区中庭,房东目前安心出售,价格可以谈,包含负一楼一个独立产权大车位。
温馨房地产专注简阳房产30年——用心打造放心中介品牌!
位置:
房源动态
7日带看(次)
0
累计带看(次)
0
带看记录
| 带看时间 | 带看经纪人 | 咨询电话 |