1
/
4
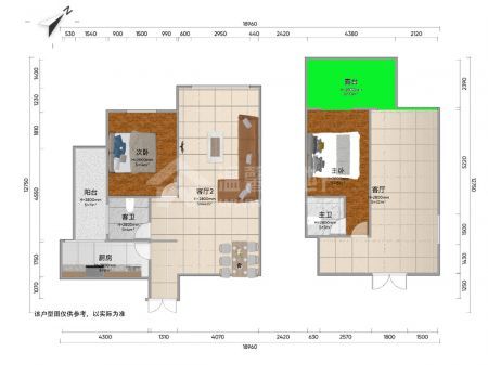
山漫锦城 3室2厅
79.8 万 (6981.63元/m²)
随时看房
本房源已支持VR看房,在线看房,省时省力
基本信息:
小区: 山漫锦城
所属学区: 射洪坝第二幼儿园
楼层: 低层 /共16层
装修: 毛坯
梯户: 2梯3户
年代: 2019
面积: 114.3m²
朝向:
附属面积: 20m² (花园/露台)
同小区房源: 1套在租 34套在售
详情:
用途: 住宅
产权性质: 不详
建筑结构: 不详
房屋类型: 小高层
标签: 暂无标签
配套设施:
无
房源特色:
跃层带花园的房子,喜欢的不要错过,清水房子可以改造的空间很大,可按照自己喜欢的风格进行改造
温馨房地产专注简阳房产30年——用心打造放心中介品牌!
用途: 住宅
产权性质: 不详
建筑结构: 不详
房屋类型: 小高层
标签: 暂无标签
配套设施:
无
房源特色:
跃层带花园的房子,喜欢的不要错过,清水房子可以改造的空间很大,可按照自己喜欢的风格进行改造
温馨房地产专注简阳房产30年——用心打造放心中介品牌!
位置:
房源动态
7日带看(次)
0
累计带看(次)
0
带看记录
| 带看时间 | 带看经纪人 | 咨询电话 |