1
/
4
带一个产权车位
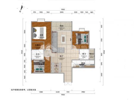
悦隽风华 3室2厅
92.8 万 (8141.78元/m²)
随时看房
本房源已支持VR看房,在线看房,省时省力
基本信息:
小区: 悦隽风华
所属学区: 射洪坝沱江幼儿园
楼层: 中层 /共30层
装修: 精装
梯户: 3梯4户
年代: 2020
面积: 113.98m²
朝向:
附属面积: 不详
同小区房源: 2套在租 26套在售
详情:
用途: 住宅
产权性质: 不详
建筑结构: 不详
房屋类型: 高层
标签: 暂无标签
配套设施:
无
房源特色:
带一个产权车位,开发商精装修,喜欢的不要错过,还能看一部分江景哦
温馨房地产专注简阳房产30年——用心打造放心中介品牌!
用途: 住宅
产权性质: 不详
建筑结构: 不详
房屋类型: 高层
标签: 暂无标签
配套设施:
无
房源特色:
带一个产权车位,开发商精装修,喜欢的不要错过,还能看一部分江景哦
温馨房地产专注简阳房产30年——用心打造放心中介品牌!
位置:
房源动态
7日带看(次)
0
累计带看(次)
0
带看记录
| 带看时间 | 带看经纪人 | 咨询电话 |