1
/
4
视野无遮挡,满二,电梯好楼层,价格可谈,带产权车位
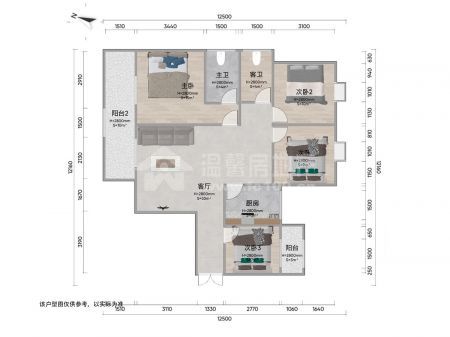
兴唐府 4室2厅
99.8 万 (7908.71元/m²)
满两年
电梯
随时看房
本房源已支持VR看房,在线看房,省时省力
基本信息:
小区: 兴唐府
所属学区: 射洪坝第一初级中学
楼层: 中层 /共17层
装修: 毛坯
梯户: 2梯3户
年代: 2022
面积: 126.19m²
朝向: 东
附属面积: 不详
同小区房源: 0套在租 53套在售
详情:
用途: 住宅
产权性质: 不详
建筑结构: 钢结构
房屋类型: 小高层
标签: 电梯
配套设施:
无
房源特色:
视野无遮挡,满二,电梯好楼层,价格可谈,房子没有什么说头,实地比照片效果更好
温馨房地产专注简阳房产30年——用心打造放心中介品牌!
用途: 住宅
产权性质: 不详
建筑结构: 钢结构
房屋类型: 小高层
标签: 电梯
配套设施:
无
房源特色:
视野无遮挡,满二,电梯好楼层,价格可谈,房子没有什么说头,实地比照片效果更好
温馨房地产专注简阳房产30年——用心打造放心中介品牌!
位置:
房源动态
7日带看(次)
0
累计带看(次)
0
带看记录
| 带看时间 | 带看经纪人 | 咨询电话 |