1
/
4
蓝湖城邦套三临江房出售
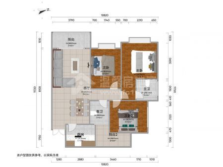
蓝湖城邦 3室2厅
78.8 万 (8739.05元/m²)
满两年
电梯
临江
随时看房
本房源已支持VR看房,在线看房,省时省力
基本信息:
小区: 蓝湖城邦
所属学区: 射洪坝筒车小学
楼层: 中层 /共30层
装修: 毛坯
梯户: 3梯6户
年代: 2018
面积: 90.17m²
朝向: 西
附属面积: 不详
同小区房源: 1套在租 25套在售
详情:
用途: 住宅
产权性质: 私产
建筑结构: 钢混结构
房屋类型: 高层
标签: 电梯;临江
配套设施:
无
房源特色:
蓝湖城邦四桥板块超大赠送户型小区环境优美室内设计科学合理通风采光佳
温馨房地产专注简阳房产30年——用心打造放心中介品牌!
用途: 住宅
产权性质: 私产
建筑结构: 钢混结构
房屋类型: 高层
标签: 电梯;临江
配套设施:
无
房源特色:
蓝湖城邦四桥板块超大赠送户型小区环境优美室内设计科学合理通风采光佳
温馨房地产专注简阳房产30年——用心打造放心中介品牌!
位置:
房源动态
7日带看(次)
0
累计带看(次)
2
带看记录
| 带看时间 | 带看经纪人 | 咨询电话 |
| 2025-12-07 |
|
18398066286 |
| 2025-12-07 |
|
15908417410 |