电梯套四双卫清水现房诚意出售

  • 客厅(2)
  • 卧室(5)
  • 卫生间(2)
  • 厨房(1)
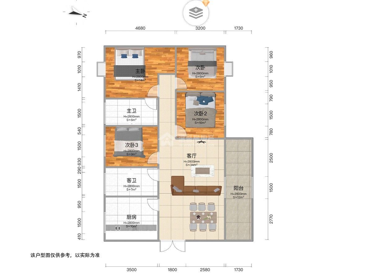
  • 户型图(1)
分享房源
108.8
8059.26 元/m²
4室2厅
中层 /共33层
毛坯
135m²
2022年建/ 住宅
小区名称 锦官天宸
所在区域 简阳城区   河东新区
所属学区 射洪坝第一初级中学
房源编号 M-35268
看房时间 随时看房
我最近带看过本房1次,非常清楚本房源特色
15108153910
电梯
随时看房

基本信息

基本属性
  • 房屋户型 4室2厅 1厨 2卫 2阳台
  • 所在楼层 中层 /共33层
  • 建筑面积 135m²
  • 房屋税收 个税、增值税
  • 使用面积 0m²
  • 建筑类型 高层
  • 附属面积 0m² (无)
  • 房屋布局 暂无数据
  • 房屋朝向
  • 建筑结构 钢混结构
  • 装修情况 毛坯
  • 梯户比例 2梯4户
  • 所属学区 射洪坝第一初级中学
  • 出让年限 70年
  • 交易权属 私产
  • 房屋用途 住宅
  • 房屋标签 电梯
  • 房屋特色 该房位于河东新区,水东版块,品质楼盘,上市公司打造,电梯小高层洋房,一梯两户,套四双卫,带大阳台,前后临中庭,诚意出售,密码锁看房方便,周边配套设施齐全,居家生活和小朋友上学都很方便。
    温馨房地产专注简阳房产30年——用心打造放心中介品牌!
  • 房屋配套 有线;WIFI;

房源照片

客厅
客厅
卧室
卧室
卧室
卧室
卧室
卫生间
厨房
卫生间
户型图
看房记录
带看时间
带看经纪人
咨询电话
2025-08-03
15983247376
2025-08-03
15108150177
2025-06-16
15908417410
近7天带看次数
0
- 总带看 5 次 -

锦官天宸地址

为你推荐新房 查看更多