滨湖城房东巨亏 挥泪甩卖

  • 图片(9)
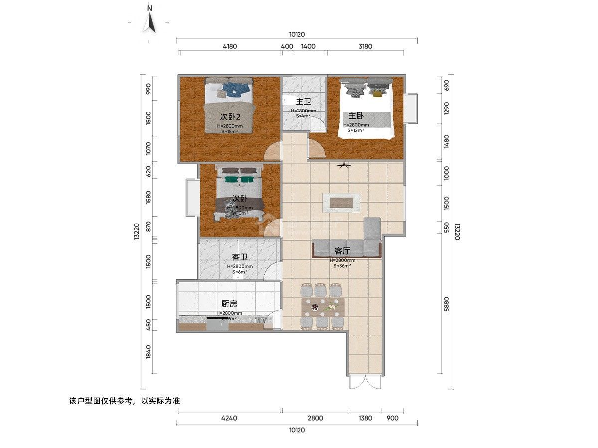
  • 户型图(1)
分享房源
65
6018.52 元/m²
3室2厅
低层 /共17层
中装
108m²
2020年建/ 住宅
小区名称 滨湖城
所在区域 简州新城   石盘街道办
所属学区 暂无数据
房源编号 M-36494
看房时间 随时看房
15760037045
电梯
随时看房

基本信息

基本属性
  • 房屋户型 3室2厅 1厨 2卫 1阳台
  • 所在楼层 低层 /共17层
  • 建筑面积 108m²
  • 房屋税收 无税
  • 使用面积 0m²
  • 建筑类型 小高层
  • 附属面积 0m² (无)
  • 房屋布局 平层
  • 房屋朝向
  • 建筑结构 钢混结构
  • 装修情况 中装
  • 梯户比例 2梯6户
  • 所属学区 暂无数据
  • 出让年限 70年
  • 交易权属 私产
  • 房屋用途 住宅
  • 房屋标签 电梯
  • 房屋特色 该房位于东部新区,旁边即是吉利大学,周边人气啊旺。租金收益高可投资可自住,开发商统一装修,添置家具家电即可入住
    温馨房地产专注简阳房产30年——用心打造放心中介品牌!
  • 房屋配套 橱柜;油烟机;灶具;

房源照片

户型图
看房记录
带看时间
带看经纪人
咨询电话
2025-03-20
13689047422
近7天带看次数
0
- 总带看 1 次 -

滨湖城地址

为你推荐新房 查看更多