城南装修套二带全套出售

  • 图片(8)
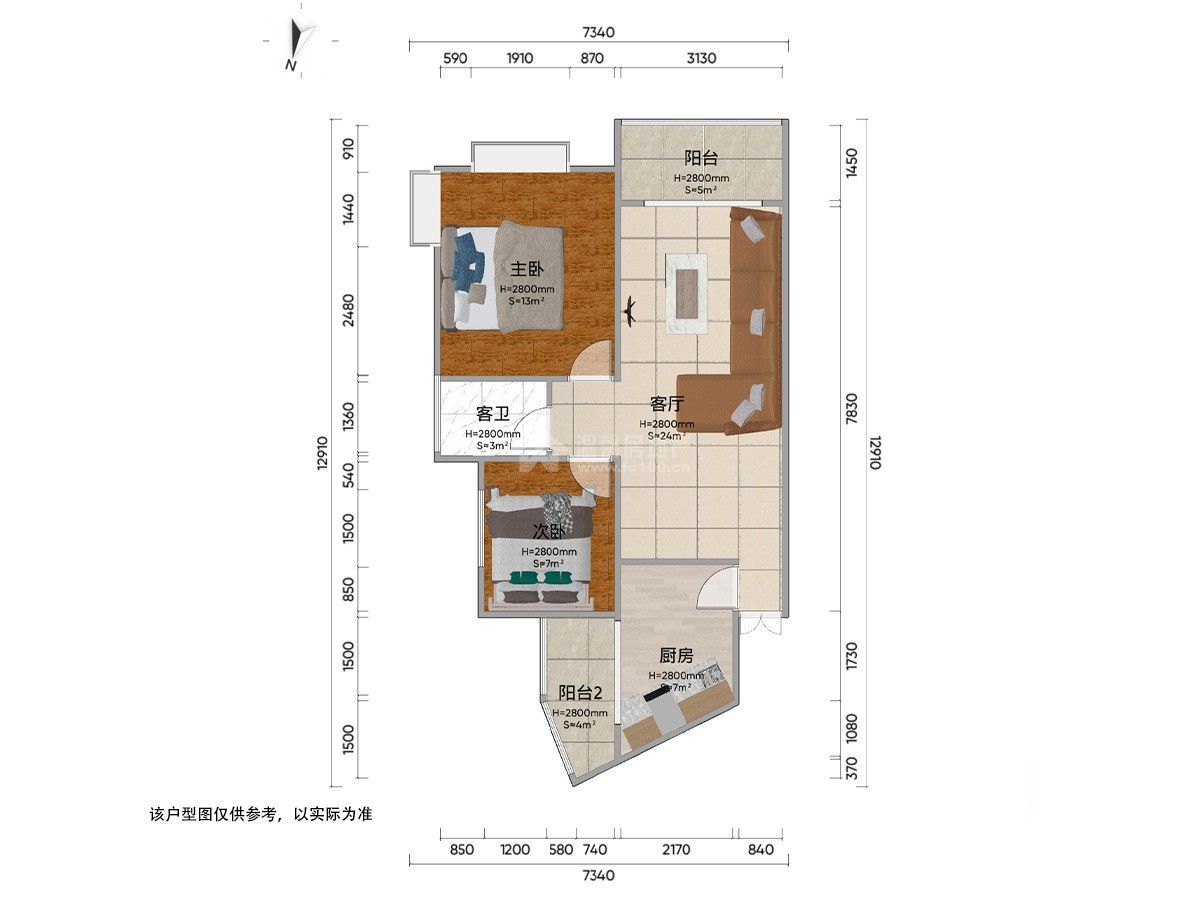
  • 户型图(1)
分享房源
51.8
6395.06 元/m²
2室2厅
低层 /共32层
西
精装
81m²
2017年建/ 住宅
小区名称 花半里
所在区域 简阳城区   城南片区
所属学区 简城城南学校
房源编号 M-39264
看房时间 咨询经纪人
13708245485
电梯

基本信息

基本属性
  • 房屋户型 2室2厅 1厨 1卫 2阳台
  • 所在楼层 低层 /共32层
  • 建筑面积 81m²
  • 房屋税收 个税
  • 使用面积 0m²
  • 建筑类型 高层
  • 附属面积 0m² (无)
  • 房屋布局 平层
  • 房屋朝向
  • 建筑结构 钢混结构
  • 装修情况 精装
  • 梯户比例 3梯8户
  • 所属学区 简城城南学校
  • 出让年限 暂无数据
  • 交易权属 私产
  • 房屋用途 住宅
  • 房屋标签 电梯
  • 房屋特色 该房位于城南花半里小区,环境优美,精装修带全套家具家电,产权齐全,可以按揭
    温馨房地产专注简阳房产30年——用心打造放心中介品牌!
  • 房屋配套 床;衣柜;餐桌;沙发;书桌;橱柜;空调;

房源照片

户型图
看房记录
带看时间
带看经纪人
咨询电话
近7天带看次数
0
- 总带看 0 次 -

花半里地址

为你推荐新房 查看更多