逸水鼎城精装套二

  • 图片(8)
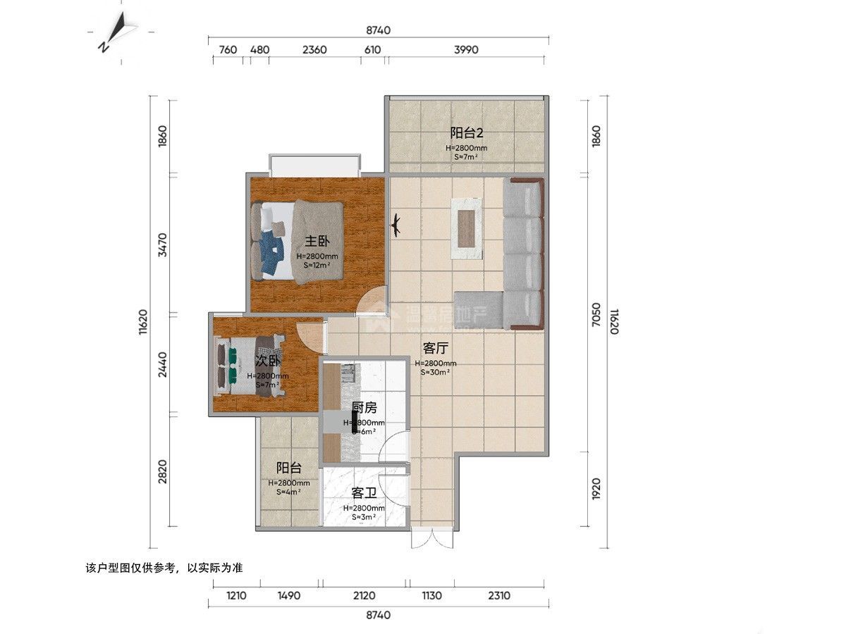
  • 户型图(1)
分享房源
49.8
6073.17 元/m²
2室2厅
低层 /共26层
精装
82m²
2013年建/ 住宅
小区名称 逸水鼎城
所在区域 简阳城区   城东片区
所属学区 简城第一小学
房源编号 M-39396
看房时间 咨询经纪人
13551706392
满两年
电梯

基本信息

基本属性
  • 房屋户型 2室2厅 1厨 1卫 1阳台
  • 所在楼层 低层 /共26层
  • 建筑面积 82m²
  • 房屋税收 暂无数据
  • 使用面积 0m²
  • 建筑类型 高层
  • 附属面积 0m²
  • 房屋布局 平层
  • 房屋朝向
  • 建筑结构 钢混结构
  • 装修情况 精装
  • 梯户比例 3梯4户
  • 所属学区 简城第一小学
  • 出让年限 70年
  • 交易权属 暂无数据
  • 房屋用途 住宅
  • 房屋标签 电梯
  • 房屋特色 该房位于老城滨江路逸水鼎城,套二户型,户型方正通透,楼层好,采光好,全屋装修,成色新,带全套家具电器诚售,周边配套设施齐全,居家生活非常便利。<br />
    温馨房地产专注简阳房产30年——用心打造放心中介品牌!
  • 房屋配套 床;衣柜;餐桌;沙发;书桌;橱柜;电视;空调;冰箱;洗衣机;油烟机;灶具;热水器;有线;宽带;WIFI;

房源照片

户型图
看房记录
带看时间
带看经纪人
咨询电话
近7天带看次数
0
- 总带看 0 次 -

逸水鼎城地址

为你推荐新房 查看更多