房东包增值税

  • 图片(10)
  • 户型图(1)
分享房源
95
7324.03 元/m²
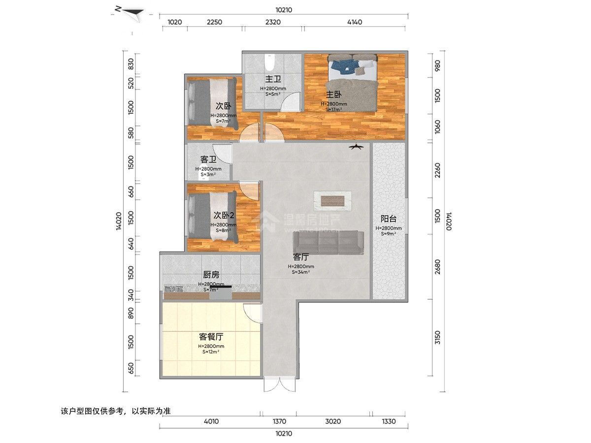
4室2厅
低层 /共17层
毛坯
129.71m²
2022年建/ 住宅
小区名称 兴唐府
所在区域 简阳城区   河东新区
所属学区 射洪坝第一初级中学
房源编号 M-39758
看房时间 随时看房
18728283806
18398055265
电梯
随时看房

基本信息

基本属性
  • 房屋户型 4室2厅 1厨 2卫
  • 所在楼层 低层 /共17层
  • 建筑面积 129.71m²
  • 房屋税收 个税、增值税
  • 使用面积 0m²
  • 建筑类型 小高层
  • 附属面积 0m²
  • 房屋布局 平层
  • 房屋朝向
  • 建筑结构 钢混结构
  • 装修情况 毛坯
  • 梯户比例 2梯3户
  • 所属学区 射洪坝第一初级中学
  • 出让年限 70年
  • 交易权属 私产
  • 房屋用途 住宅
  • 房屋标签 电梯
  • 房屋特色 家人们看过来!兴唐府有套超棒的住宅出售,3室2厅2卫的格局,户型方正满满。小高层,出行超方便。还是毛坯房,可随心装修。,机会难得,别错过!
    温馨房地产专注简阳房产30年——用心打造放心中介品牌!
  • 房屋配套 宽带;

房源照片

户型图
看房记录
带看时间
带看经纪人
咨询电话
近7天带看次数
0
- 总带看 0 次 -

兴唐府地址

小区位置
为你推荐新房 查看更多