10米长阳台优质好楼层套三双卫

  • 图片(9)
  • 户型图(1)
分享房源
69.8
5810.86 元/m²
3室2厅
中层 /共28层
中装
120.12m²
2021年建/ 住宅
所在区域 简阳城区   天星公园
所属学区 石桥小学
房源编号 M-39954
看房时间 随时看房
15760348619
满两年
电梯
随时看房
寄售

基本信息

基本属性
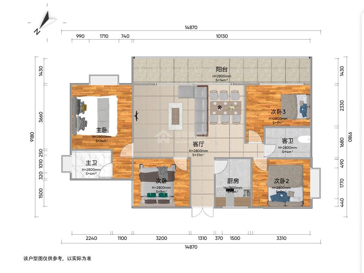
  • 房屋户型 3室2厅 2卫
  • 所在楼层 中层 /共28层
  • 建筑面积 120.12m²
  • 房屋税收 暂无数据
  • 使用面积 0m²
  • 建筑类型 高层
  • 附属面积 0m²
  • 房屋布局 平层
  • 房屋朝向
  • 建筑结构 钢混结构
  • 装修情况 中装
  • 梯户比例 2梯5户
  • 所属学区 石桥小学
  • 出让年限 暂无数据
  • 交易权属 暂无数据
  • 房屋用途 住宅
  • 房屋标签 电梯
  • 房屋特色 房子是精装大套三双卫,阳台近10米左右,非常适合居住,视野开阔,楼间距宽,对中庭,户型很不错的,抓紧看
    温馨房地产专注简阳房产30年——用心打造放心中介品牌!
  • 房屋配套 衣柜;橱柜;油烟机;灶具;

房源照片

户型图
看房记录
带看时间
带看经纪人
咨询电话
2026-02-12
18228252775
近7天带看次数
0
- 总带看 1 次 -

天慧城一二期地址

小区位置
为你推荐新房 查看更多