凯丽滨江临江套二

  • 图片(9)
  • 户型图(1)
分享房源
42.8
5254.11 元/m²
2室2厅
高层 /共24层
中装
81.46m²
2014年建/ 住宅
小区名称 凯丽滨江
所在区域 简阳城区   城北片区
所属学区 城北小学
房源编号 M-40746
看房时间 咨询经纪人
18708252158
满两年
电梯
临江

基本信息

基本属性
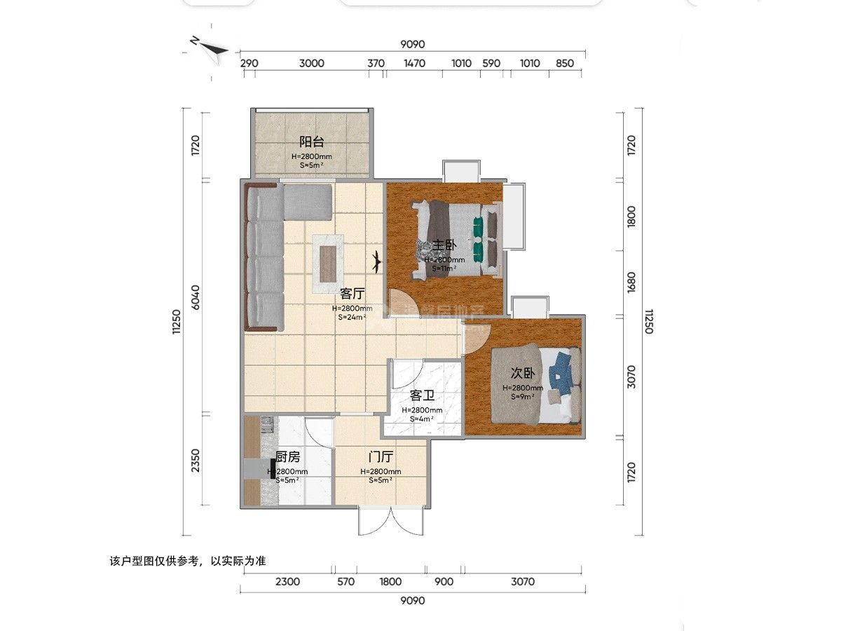
  • 房屋户型 2室2厅 1厨 1卫 2阳台
  • 所在楼层 高层 /共24层
  • 建筑面积 81.46m²
  • 房屋税收 暂无数据
  • 使用面积 0m²
  • 建筑类型 高层
  • 附属面积 0m²
  • 房屋布局 平层
  • 房屋朝向
  • 建筑结构 暂无数据
  • 装修情况 中装
  • 梯户比例 3梯6户
  • 所属学区 城北小学
  • 出让年限 暂无数据
  • 交易权属 暂无数据
  • 房屋用途 住宅
  • 房屋标签 电梯;临江
  • 房屋特色 【精品房源】南北通透三居,配套完善,高楼层视野开阔,宜居首选!
    温馨房地产专注简阳房产30年——用心打造放心中介品牌!
  • 房屋配套 床;衣柜;餐桌;沙发;书桌;橱柜;电视;空调;冰箱;洗衣机;油烟机;灶具;热水器;有线;宽带;WIFI;

房源照片

户型图
看房记录
带看时间
带看经纪人
咨询电话
近7天带看次数
0
- 总带看 0 次 -

凯丽滨江地址

为你推荐新房 查看更多