简阳城南片区 套三单价仅3000多

  • 图片(10)
  • 户型图(1)
分享房源
44
3142.86 元/m²
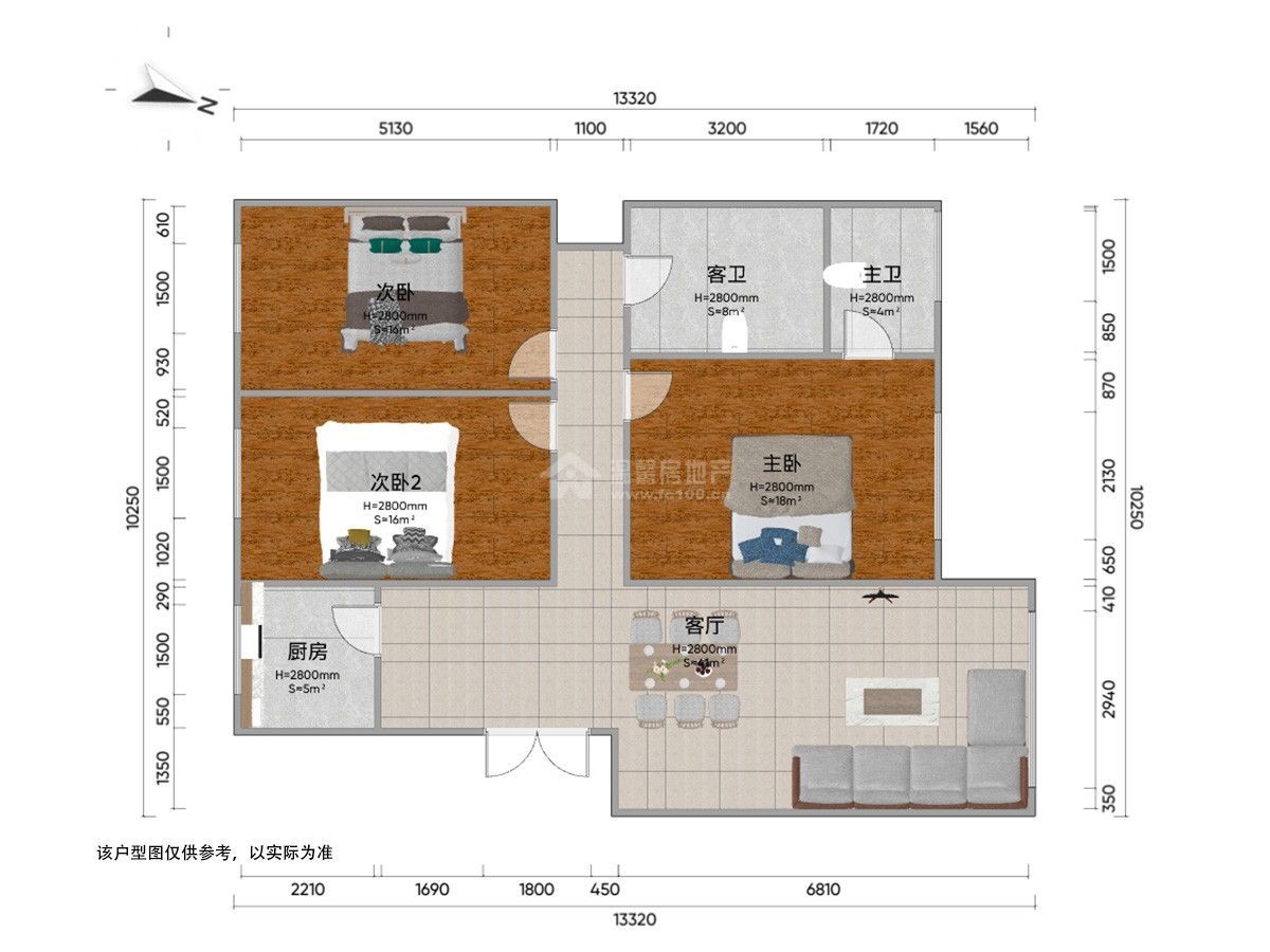
3室2厅
中层 /共8层
南 北
简装
140m²
2005年建/ 住宅
小区名称 长荣街225号
所在区域 简阳城区   城南片区
所属学区 简城第三幼儿园
房源编号 M-41590
看房时间 随时看房
15983247376
满两年
步梯
随时看房

基本信息

基本属性
  • 房屋户型 3室2厅 1厨 2卫 1阳台
  • 所在楼层 中层 /共8层
  • 建筑面积 140m²
  • 房屋税收 暂无数据
  • 使用面积 0m²
  • 建筑类型 多层
  • 附属面积 0m²
  • 房屋布局 平层
  • 房屋朝向
  • 建筑结构 钢混结构
  • 装修情况 简装
  • 梯户比例 1梯2户
  • 所属学区 简城第三幼儿园
  • 出让年限 70年
  • 交易权属 私产
  • 房屋用途 住宅
  • 房屋标签 步梯
  • 房屋特色 简阳城南片区 房东诚意卖 单价3600,周边配套相当完善 出门就是三小 菜市 居家购物均方便!
    温馨房地产专注简阳房产30年——用心打造放心中介品牌!
  • 房屋配套 床;衣柜;餐桌;沙发;书桌;橱柜;电视;空调;冰箱;洗衣机;油烟机;灶具;热水器;有线;

房源照片

户型图
看房记录
带看时间
带看经纪人
咨询电话
近7天带看次数
0
- 总带看 0 次 -

长荣街225号地址

为你推荐新房 查看更多