精装套三双卫

  • 图片(9)
  • 户型图(1)
分享房源
53.8
5847.83 元/m²
3室2厅
低层 /共6层
精装
92m²
2011年建/ 住宅
小区名称 蜀州花园
所在区域 简阳城区   河东新区
所属学区 射洪坝第二幼儿园
房源编号 M-41759
看房时间 随时看房
13378315807
13684133004
满两年
步梯
随时看房

基本信息

基本属性
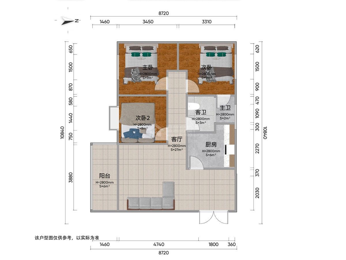
  • 房屋户型 3室2厅 1厨 2卫 1阳台
  • 所在楼层 低层 /共6层
  • 建筑面积 92m²
  • 房屋税收 个税
  • 使用面积 0m²
  • 建筑类型 多层
  • 附属面积 0m²
  • 房屋布局 平层
  • 房屋朝向
  • 建筑结构 钢混结构
  • 装修情况 精装
  • 梯户比例 1梯4户
  • 所属学区 射洪坝第二幼儿园
  • 出让年限 50年
  • 交易权属 私产
  • 房屋用途 住宅
  • 房屋标签 步梯
  • 房屋特色 家人们看过来!蜀州花园有套宝藏住宅出售啦!110㎡,3室2厅2卫,朝东户型,步梯1楼出入超方便。房子精装修,产权已满两年。关键是价格美丽,仅需55万!有购房想法的友友别错过~
    温馨房地产专注简阳房产30年——用心打造放心中介品牌!
  • 房屋配套 床;衣柜;餐桌;沙发;橱柜;电视;空调;冰箱;洗衣机;油烟机;灶具;热水器;

房源照片

户型图
看房记录
带看时间
带看经纪人
咨询电话
近7天带看次数
0
- 总带看 0 次 -

蜀州花园地址

为你推荐新房 查看更多