依云谷精装大套二 家具家电齐全 看房方便

  • 图片(9)
  • 户型图(1)
分享房源
58.8
8281.69 元/m²
3室2厅
低层 /共31层
精装
71m²
2014年建/ 住宅
小区名称 依云谷
所在区域 简阳城区   河东新区
所属学区 射洪坝筒车小学
房源编号 M-44518
看房时间 随时看房
15760022050
电梯
随时看房
寄售

基本信息

基本属性
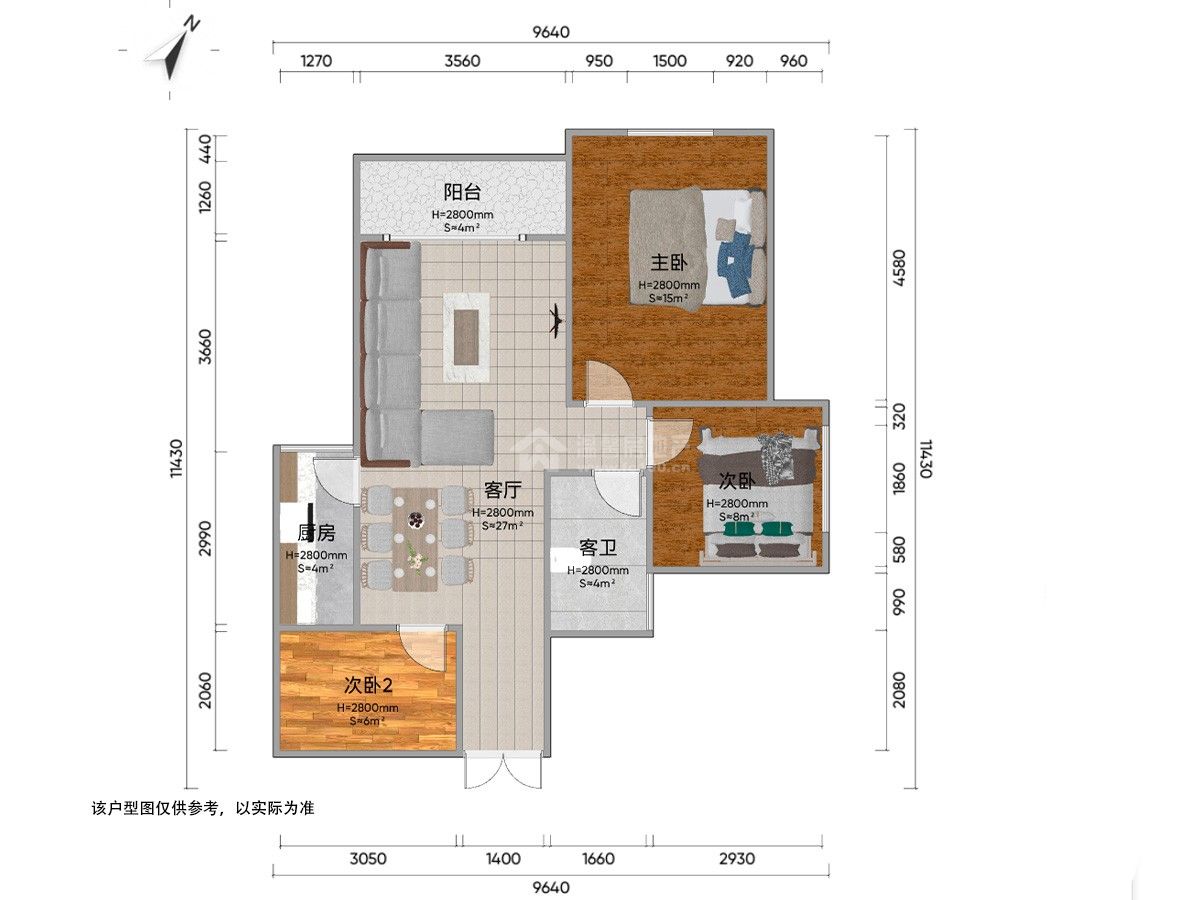
  • 房屋户型 3室2厅 1厨 2卫 1阳台
  • 所在楼层 低层 /共31层
  • 建筑面积 71m²
  • 房屋税收 个税
  • 使用面积 0m²
  • 建筑类型 高层
  • 附属面积 5m² (其它)
  • 房屋布局 平层
  • 房屋朝向
  • 建筑结构 砖混结构
  • 装修情况 精装
  • 梯户比例 3梯6户
  • 所属学区 射洪坝筒车小学
  • 出让年限 70年
  • 交易权属 企产
  • 房屋用途 住宅
  • 房屋标签 电梯
  • 房屋特色 依云谷精装大套二 家具家电齐全 看房方便 价格美丽
    温馨房地产专注简阳房产30年——用心打造放心中介品牌!
  • 房屋配套 床;衣柜;餐桌;沙发;书桌;橱柜;电视;空调;冰箱;洗衣机;油烟机;灶具;热水器;有线;宽带;WIFI;

房源照片

户型图
看房记录
带看时间
带看经纪人
咨询电话
2026-04-04
18884382720
2026-04-02
15983247376
近7天带看次数
0
- 总带看 2 次 -

依云谷地址

小区位置
为你推荐新房 查看更多