御景湾 - M-39743

  • 图片(10)
  • 户型图(1)
分享房源
83.18
6396.49 元/m²
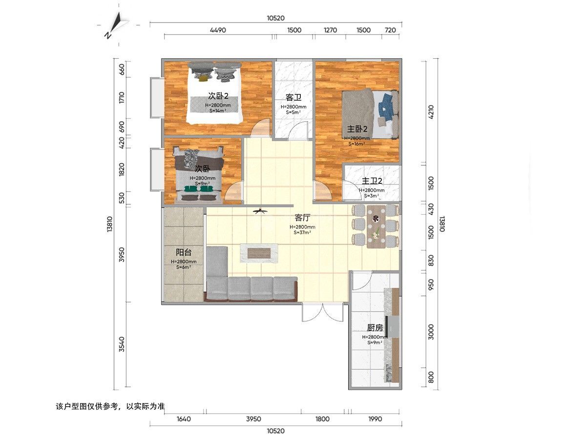
3室2厅
高层 /共23层
西南
中装
130.04m²
2009年建/ 住宅
小区名称 御景湾
所在区域 简阳城区   河东新区
所属学区 射洪坝第一小学
房源编号 M-39743
看房时间 咨询经纪人
我最近带看过本房1次,非常清楚本房源特色
18728283806
电梯

基本信息

基本属性
  • 房屋户型 3室2厅
  • 所在楼层 高层 /共23层
  • 建筑面积 130.04m²
  • 房屋税收 暂无数据
  • 使用面积 0m²
  • 建筑类型 高层
  • 附属面积 0m²
  • 房屋布局 平层
  • 房屋朝向
  • 建筑结构 钢混结构
  • 装修情况 中装
  • 梯户比例 3梯6户
  • 所属学区 射洪坝第一小学
  • 出让年限 暂无数据
  • 交易权属 暂无数据
  • 房屋用途 住宅
  • 房屋标签 电梯
  • 房屋特色 暂无数据
  • 房屋配套 床;衣柜;餐桌;沙发;书桌;橱柜;电视;空调;冰箱;洗衣机;油烟机;灶具;热水器;有线;宽带;WIFI;

房源照片

户型图
看房记录
带看时间
带看经纪人
咨询电话
2025-10-25
18728283806
近7天带看次数
0
- 总带看 1 次 -

御景湾地址

为你推荐新房 查看更多