楼王位置,视野开拓

  • 图片(9)
  • 户型图(1)
分享房源
84.8
7485.88 元/m²
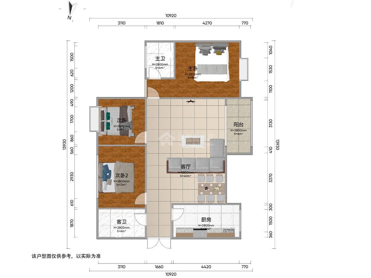
3室2厅
高层 /共30层
毛坯
113.28m²
2020年建/ 住宅
小区名称 喜悦美麓
所在区域 简阳城区   河东新区
所属学区 射洪坝第二幼儿园
房源编号 M-39811
看房时间 随时看房
17208294874
19982036393
满两年
电梯
随时看房

基本信息

基本属性
  • 房屋户型 3室2厅 1厨 2卫 1阳台
  • 所在楼层 高层 /共30层
  • 建筑面积 113.28m²
  • 房屋税收 个税
  • 使用面积 0m²
  • 建筑类型 高层
  • 附属面积 0m² (无)
  • 房屋布局 平层
  • 房屋朝向
  • 建筑结构 钢混结构
  • 装修情况 毛坯
  • 梯户比例 2梯4户
  • 所属学区 射洪坝第二幼儿园
  • 出让年限 70年
  • 交易权属 其他
  • 房屋用途 住宅
  • 房屋标签 电梯
  • 房屋特色 喜悦美鹿楼王位置,视野开阔,正看东来印象,这样的房子真的很赞哦。喜欢的不要错过
    温馨房地产专注简阳房产30年——用心打造放心中介品牌!
  • 房屋配套

房源照片

户型图
看房记录
带看时间
带看经纪人
咨询电话
近7天带看次数
0
- 总带看 0 次 -

喜悦美麓地址

为你推荐新房 查看更多