城南电梯临江套二诚意出售

  • 图片(8)
  • 户型图(1)
分享房源
45
5089.35 元/m²
2室2厅
高层 /共32层
毛坯
88.42m²
2024年建/ 住宅
所在区域 简阳城区   城南片区
所属学区 简城城南学校
房源编号 M-40717
看房时间 随时看房
18215571787
满两年
电梯
临江
随时看房

基本信息

基本属性
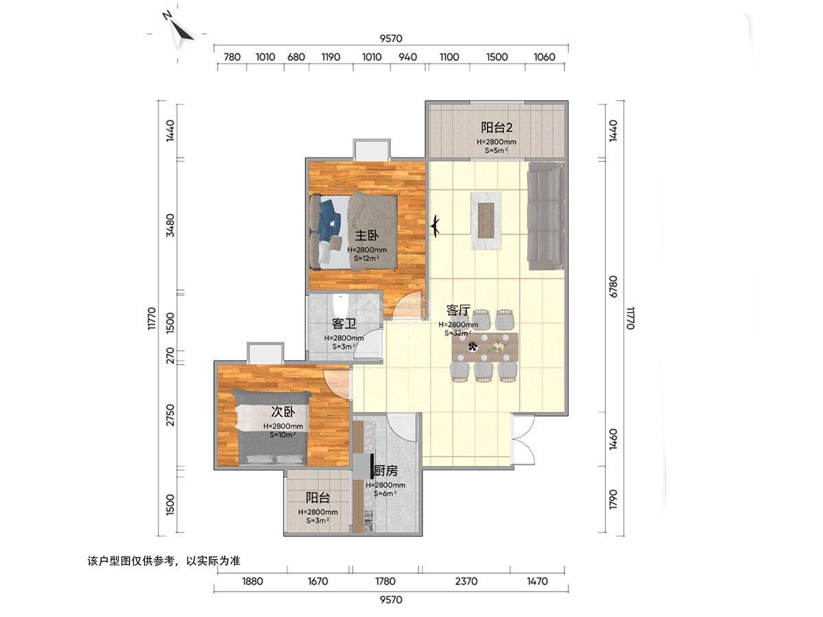
  • 房屋户型 2室2厅 1厨 1卫 2阳台
  • 所在楼层 高层 /共32层
  • 建筑面积 88.42m²
  • 房屋税收 暂无数据
  • 使用面积 0m²
  • 建筑类型 高层
  • 附属面积 0m²
  • 房屋布局 平层
  • 房屋朝向
  • 建筑结构 钢混结构
  • 装修情况 毛坯
  • 梯户比例 2梯5户
  • 所属学区 简城城南学校
  • 出让年限 70年
  • 交易权属 私产
  • 房屋用途 住宅
  • 房屋标签 电梯;临江
  • 房屋特色 该房位于城南品质小区,临江电梯中间楼层,户型方正,通风采光佳,清水房可根据自己的需求随意装修!
    温馨房地产专注简阳房产30年——用心打造放心中介品牌!
  • 房屋配套

房源照片

户型图
看房记录
带看时间
带看经纪人
咨询电话
近7天带看次数
0
- 总带看 0 次 -

东方威尼斯D区地址

小区位置
为你推荐新房 查看更多