悦荣府 - M-40843

  • 图片(9)
  • 户型图(1)
分享房源
89
7416.67 元/m²
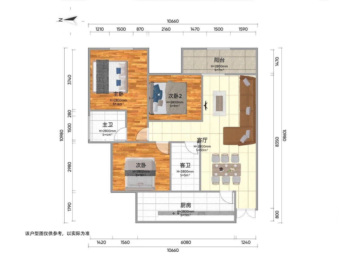
3室2厅
低层 /共23层
毛坯
120m²
2019年建/ 住宅
小区名称 悦荣府
所在区域 简阳城区   河东新区
所属学区 射洪坝筒车小学
房源编号 M-40843
看房时间 咨询经纪人
15908148648
18982901126
电梯

基本信息

基本属性
  • 房屋户型 3室2厅 1厨 2卫 1阳台
  • 所在楼层 低层 /共23层
  • 建筑面积 120m²
  • 房屋税收 暂无数据
  • 使用面积 0m²
  • 建筑类型 高层
  • 附属面积 0m²
  • 房屋布局 暂无数据
  • 房屋朝向
  • 建筑结构 暂无数据
  • 装修情况 毛坯
  • 梯户比例 3梯4户
  • 所属学区 射洪坝筒车小学
  • 出让年限 暂无数据
  • 交易权属 暂无数据
  • 房屋用途 住宅
  • 房屋标签 电梯
  • 房屋特色 位于河东新区品质小区,次新房小区,自有产权可按揭,生活配套齐全,出小区从里便是滨江路
    温馨房地产专注简阳房产30年——用心打造放心中介品牌!
  • 房屋配套

房源照片

户型图
看房记录
带看时间
带看经纪人
咨询电话
近7天带看次数
0
- 总带看 0 次 -

悦荣府地址

为你推荐新房 查看更多