需全款南北户型套三双卫

  • 图片(9)
  • 户型图(1)
分享房源
78.8
6852.17 元/m²
3室2厅
高层 /共33层
毛坯
115m²
2023年建/ 住宅
小区名称 云樾名邸
所在区域 简阳城区   河东新区
所属学区 射洪坝筒车小学
房源编号 M-42298
看房时间 随时看房
18728283806
电梯
随时看房
寄售

基本信息

基本属性
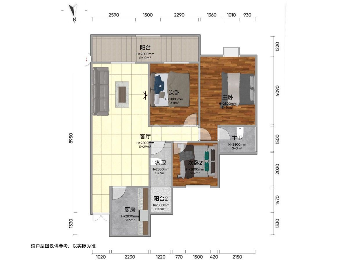
  • 房屋户型 3室2厅 1厨 2卫 1阳台
  • 所在楼层 高层 /共33层
  • 建筑面积 115m²
  • 房屋税收 个税
  • 使用面积 0m²
  • 建筑类型 高层
  • 附属面积 0m² (无)
  • 房屋布局 平层
  • 房屋朝向
  • 建筑结构 钢混结构
  • 装修情况 毛坯
  • 梯户比例 2梯4户
  • 所属学区 射洪坝筒车小学
  • 出让年限 70年
  • 交易权属 私产
  • 房屋用途 住宅
  • 房屋标签 电梯
  • 房屋特色 直接网签需要全款此房位于河东新区中心位置,此小区高品质改善住宅小区,小区有建身房,儿童玩耍区,私宴厅。此户型套三双卫,户型方正,楼层好,视野好。
    温馨房地产专注简阳房产30年——用心打造放心中介品牌!
  • 房屋配套

房源照片

户型图
看房记录
带看时间
带看经纪人
咨询电话
2026-05-03
15908417410
2026-05-03
15108153910
2026-02-12
15108150177
近7天带看次数
0
- 总带看 4 次 -

云樾名邸地址

小区位置
为你推荐新房 查看更多