滨江新城 - Z-39212

  • 图片(8)
分享房源
0
0 元/m²
3室2厅
中层 /共32层
中装
108.35m²
2019年建/ 住宅
小区名称 滨江新城
所在区域 简阳城区   东溪片区
所属学区 东溪幼儿园
房源编号 Z-39212
看房时间 咨询经纪人
13558802503
电梯

基本信息

基本属性
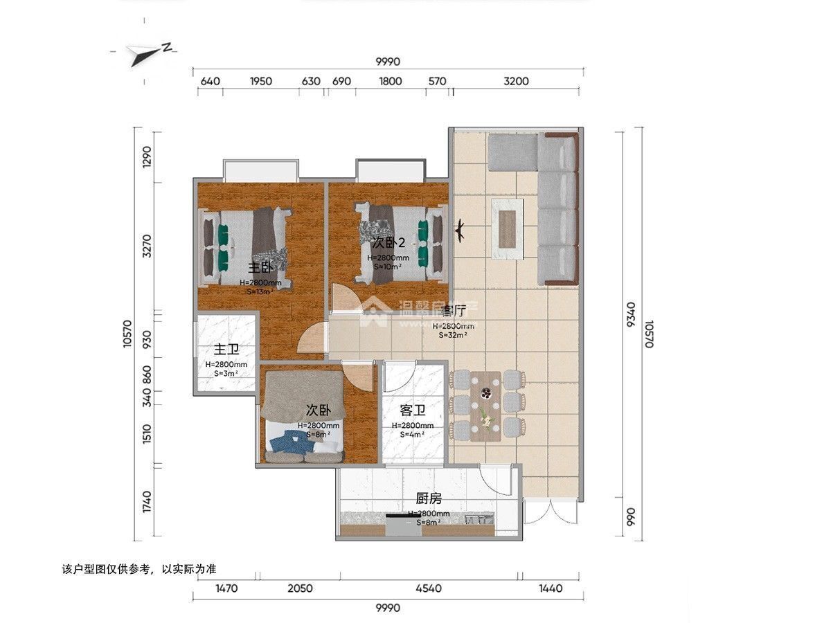
  • 房屋户型 3室2厅 1厨 1卫 2阳台
  • 所在楼层 中层 /共32层
  • 建筑面积 108.35m²
  • 房屋税收 暂无数据
  • 使用面积 0m²
  • 建筑类型 高层
  • 附属面积 0m²
  • 房屋布局 平层
  • 房屋朝向
  • 建筑结构 钢混结构
  • 装修情况 中装
  • 梯户比例 3梯5户
  • 所属学区 东溪幼儿园
  • 出让年限 暂无数据
  • 交易权属 暂无数据
  • 房屋用途 住宅
  • 房屋标签 电梯
  • 房屋特色 暂无数据
  • 房屋配套 床;衣柜;餐桌;沙发;书桌;橱柜;电视;空调;冰箱;洗衣机;油烟机;灶具;热水器;

房源照片

看房记录
带看时间
带看经纪人
咨询电话
近7天带看次数
0
- 总带看 0 次 -

滨江新城地址

为你推荐新房 查看更多